











Chata Řivnáč
Roztoky u Prahy
2023 -->
Milan Valeš, Bára Šimonová (cosa.cz)
CZ:
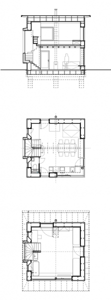
Dřevostavba chaty pro minimální bydlení čtyřčlenné rodiny, v rozlehlé zahradě na půdorysu původní ruiny. Dvouprostorová dispozice v kompaktní hmotě domu - v přízemí hlavní obytná místnost s kuchyní, v patře společná ložnice s výstupem na pobytovou střechu. Konstrukčně je dům řešen z prefabrikovaných rámových panelů plněných lisovanou slámou v kombinaci s tesařskými konstrukcemi, založení domu je na pilířích. Atmosféra interiéru je dána spolupůsobením vnějšího prostředí za velkými okny s přírodními materiály hliněných omítek a masivního dřeva.
EN:
A timber cabin designed for minimal living for a family of four, situated within a spacious garden on the footprint of a former ruin. The compact volume of the house accommodates a two-zone layout: the ground floor contains the main living area with a kitchen, while the upper floor features a shared bedroom with direct access to a rooftop terrace designed for outdoor use.
The structural system consists of prefabricated timber frame panels filled with compressed straw, combined with traditional carpentry elements; the entire building is elevated on pillars. The interior atmosphere is shaped by the interplay between the surrounding outdoor environment visible through large windows and natural materials such as clay plaster and solid wood.