


















RD Stupice
Stupice - Praha východ
2023 - 2024
Milan Valeš, Filip Klozar (Inu architekti)
CZ:
Novostavba rodinného domu pro 5-ti člennou rodinu, s malým jezdeckým hospodářstvím, pohodlný venkovský dům pro pospolitý rodinný život v blízkosti milovaných koní, svého druhu ranč nebo farma.
Dům je na novém stavebním pozemku, přilehlá lineární pastvina přechází již do volné zemědělské krajiny ve stínu hlavního města Prahy.
Velkorysý program rodinného bydlení je v návrhu uspořádán do energeticky šetrné kompaktní hmoty kvádru zastřešeného diamantově prolomenou střechou. Ve svém objemu dům nabízí nadstandardní užitnou plochu, a je připravený hostit i větší rodinné akce na které se sejde více generací.
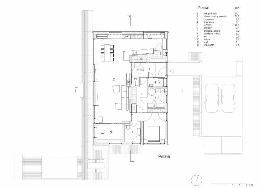
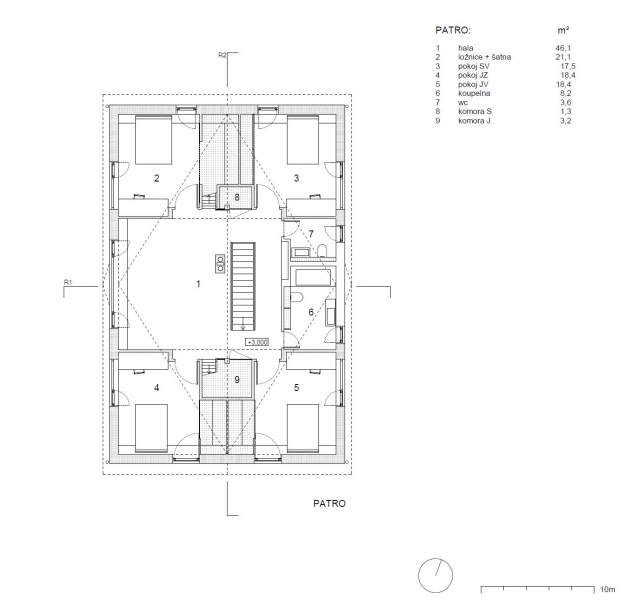
Společenské prostory domu - kuchyně, jídelny, obýváku a pracovny jsou spolu s jednou ložnicí uspořádány v přízemí domu, kde tvoří vzájemné kontinuum, nabízející mnoho vizuálně provázaných míst, a širokou škálu světelného prostředí podle denní a roční doby. V patře jsou čtyři soukromé ložnice s šatnami, a společná hala nabízející prostor pro alternativní aktivity paralelní přízemí. Ve vrcholu střechy nad šatnami jsou dvě malé půdy využívající objem domu na maximum, možností hostovkého spaní nebo skladu. Vnitřní dveře spolu s okny vytvářejí vzájemně si odpovídající průhledy v maximálně dlouhých liniích, svými formáty a proporcemi rámují vnější svět, výraz vnějších fasád je v toto pořadí druhotný. Návrh zohledňuje mnoho individuálních potřeb a přání klientů, v podobě kapacitních úložných prostor šaten a spíže, i komplexní technologická řešení.
Okolní krajina je rovinná a dům si ve svém bezprostředním okolí vytváří svůj vlastní kontext. Na samotný dům navazuje dlouhá krytá veranda orientovaná do zahrady směrem ke koním, která spolu s rámovým plotem pozemku podél budoucí ulice vytváří výrazný rámec dvora s jezdeckou tematikou.
Nové prostory zahrady kolem domu jsou definovány nově vysazenými ovocnými stromy
Materialita domu pracuje v maximální míře s přírodními materiály, včetně povrchových úprav. Barevné řešení vychází z palety barev běžných ve venkovském prostředí, návrh počítá s přirozeným stárnutím materiálů a patinou hrubé omítky a výrazně barevných dřevěných a kovových prvků. V interiéru domu jsou použity základní materiály: dřevěné podlahy a keramické dlažby, vápenné omítky, přírodní dřevo ve své přirozené formě a v barevných lazurách na vestavěném nábytku.
Konstrukční báze domu je navržena jako zděná z vápenopískových tvárnic s kontaktním zateplením nebo z izolačních tvárnic přímo omítaných, strop nad přízemím je keramický nebo z prefabrikovaných betonových panelů. Krov stavby je dřevěný - hlavní konstrukční prvky jsou z lepených nosníků, krokve z dřevěných I nosníků, střecha je izolována foukanou celulózou. Střešní krytina může být keramická nebo z šablon.
I přes svou dostřednou formu je prostorové a konstrukční uspořádání domu ve formě jednoduchého dvojtraktu přízemí a volného prostoru patra velmi flexibilní a otevřené případným úpravám plynoucím z budoucích potřeb.
EN:
Newly built family house for a family of 5, with a small equestrian farm, a comfortable country house for family life near the beloved horses, a kind of ranch or farm.
The house is on a new building lot, the adjacent linear pasture already transitions into open farmland in the shadow of the capital city.
The generous program of family living is arranged in the design in an energy-friendly compact mass covered by a diamond shaped roof. In its volume, the house offers an above-standard usable area, and is ready to host larger family events for which several generations will gather.
The social spaces of the house - kitchen, dining room, living room and study - are arranged on the ground floor, along with one bedroom, where they form a continuum with each other, offering many visually interconnected spaces, and a wide range of light according to the time of day and season. Upstairs are four private bedrooms with dressing rooms, and a communal hall offering space for alternative activities parallel to the ground floor. In the peak of the roof above the dressing rooms are two small lofts making the most of the volume of the house. The internal doors together with the windows create mutually corresponding views in lines of maximum length, framing the outside world with their formats and proportions, the composition of the external facades is secondary in this order. The design takes into account the many individual needs and wishes of the clients, in the form of capacitive storage spaces for cloakrooms and pantries, as well as complex technological solutions.
The surrounding landscape is flat and the house creates its own context in its immediate surroundings. The house itself is joined by a long covered porch facing the garden towards the horses, which, together with the property's frame fence along the future street, creates a distinctive equestrian-themed courtyard framework.
New garden spaces around the house are defined by newly planted fruit trees.
The materiality of the house works as much as possible with natural materials, including finishes. The colour scheme is based on a palette of colours common in rural environments, and the design allows for the natural ageing of materials and the patina of rough plaster and distinctively coloured timber and metal features. The interior of the house uses basic materials: wooden floors and ceramic tiles, lime plasters, natural wood in its natural form and in coloured stains on the built-in furniture.
The structural base of the house is designed as brickwork made of lime-sand blocks with contact insulation or insulated blocks directly plastered, the ceiling above the ground floor is ceramic or prefabricated concrete panels. The roof of the building is wooden - the main structural elements are made of glued beams, the rafters are made of wooden I-beams, the roof is insulated with blown cellulose. Roofing can be ceramic or made of tiles.
Despite its central form, the spatial and structural arrangement of the house, in the form of a simple double-tract ground floor and open space upstairs, is very flexible and open to possible modifications arising from future needs.